Beryl Street Residence
Location: Pacific Beach, California Completed: 2002
This ground up custom home, replaced an existing beach bungalow where our clients had lived for 20 years. The site strategy for the 2,500 sf home was simple; optimize views and outdoor space by minimizing the building footprint and building up, rather than out.
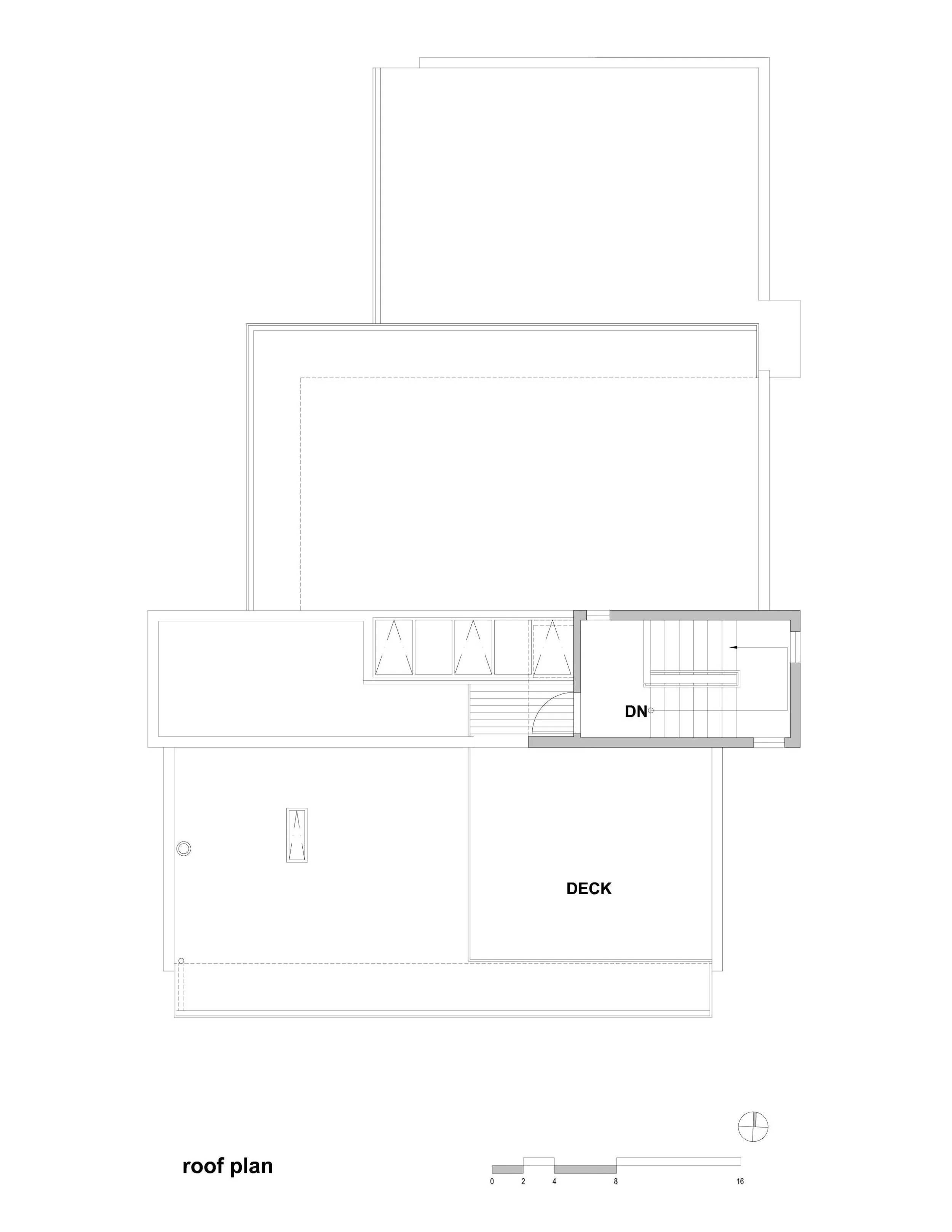
The home is organized around a sun filled central stair atrium that provides access to spectacular white water views of the Pacific from a roof top deck. Operable skylights at the atrium facilitate natural air-conditioning via thermo-siphoning throughout the home.
Photos: Arleo Architects Inc.
