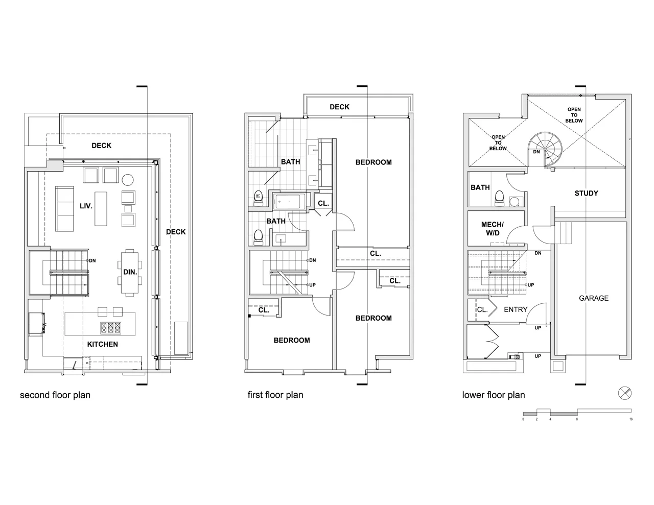
Winfield Street Residence
Location: San Francisco, CA Completed: 2011
Once a mundane ‘60’s stucco box, the Winfield Street Residence is transformed into a sophisticated urban dwelling that responds to the needs of a growing family. The third floor addition captures kitchen, living and dining functions in a glass box wrapped with a rain screen of skateboard ramp material. A modest palette, simple detailing and ample daylighting allow ever changing views to be taken in without distraction. The unique steep hillside site creates opportunities for each space in the house to engage the urban context and celebrate bridge to bridge views while maintaining privacy on the narrow street.
Photos: Ken Gutmaker and Arleo Architects Inc.

 
            
          
          
        
        
      
        
        
          
            
               
            
          
          
        
        
      
        
        
          
            
               
            
          
          
        
        
      
        
        
          
            
               
            
          
          
        
        
      
        
        
          
            
               
            
          
          
        
        
      
        
        
          
            
               
            
          
          
        
        
      
        
        
          
            
               
            
          
          
        
        
      
        
        
          
            
               
            
          
          
        
        
      
        
        
          
            
               
            
          
          
        
        
      
        
        
          
            
               
            
          
          
        
        
      
        
        
          
            
               
            
          
          
        
        
      
        
        
          
            
               
            
          
          
        
        
      
        
        
          
            
               
            
          
          
        
        
      
        
        
          
            
               
            
          
          
        
        
      
        
        
          
            
               
            
          
          
        
        
      
        
        
          
            
               
            
          
          
        
        
      
        
        
          
            
               
            
          
          
        
        
      
        
        
          
            
               
            
          
          
        
        
      
        
        
          
            
               
            
          
          
        
        
      
        
        
          
            
               
            
          
          
        
        
      
        
        
          
            
               
            
          
          
        
        
      
        
        
          
            
               
            
          
          
        
        
      
    
  